Nhà chữ T là kiểu mặt bằng nhìn từ trên cao giống chữ T, đây là loại nhà phổ biến ở cả đô thị và nông thôn. Bài viết này giúp bạn hiểu trọn vẹn: khái niệm, ưu – nhược điểm công năng, ảnh hưởng phong thủy (khuyết góc), tác động tới giá trị và cách thức làm tăng giá trị để thanh khoản nhanh.
1) Nhà chữ T là gì? Có những biến thể nào?
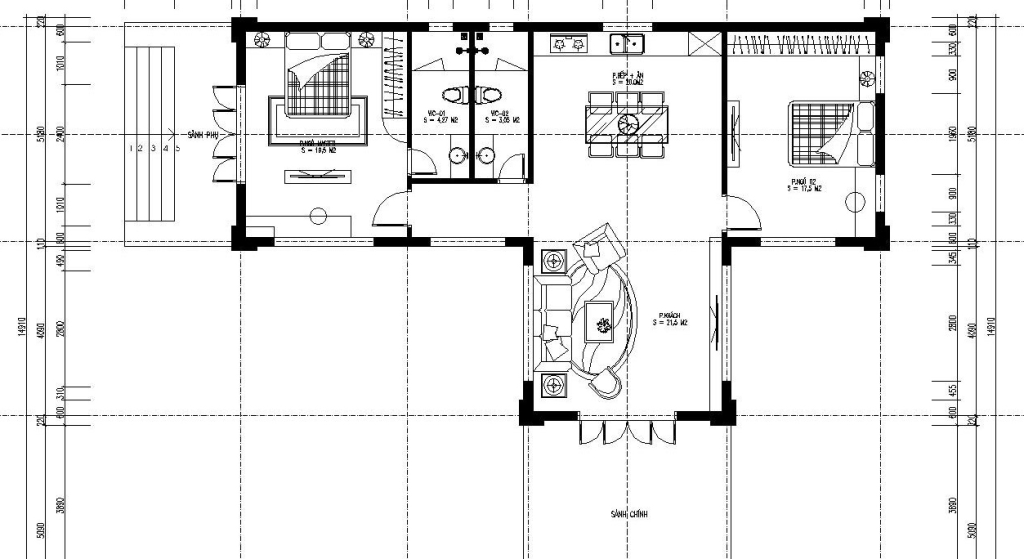
Định nghĩa: Nhà có mặt bằng (floor plan) nhìn từ trên cao tạo hình chữ T. Nhà có một khối ngang (thường là khối chính/mặt tiền) và một nhánh dọc (khối nối dài vào sau hoặc nhô về trước).
Biến thể thường gặp:
T tiêu chuẩn: thanh ngang làm khối chính (phòng khách – bếp – sinh hoạt), thanh dọc là khối phụ (phòng ngủ, kho, gara).
T ngược (┴ lật): nhánh dọc quay ra mặt tiền (thường là sảnh/tiền phòng).
T lệch: nhánh dọc không nằm chính giữa, tạo cảm giác “khuyết” một phía.
Lưu ý phân biệt: Nhà chữ T (hình dạng mặt bằng) khác với nhà nằm ở vị trí ngã ba kiểu chữ T (T-junction). T-junction là câu chuyện hướng giao thông xung sát vào cửa tuy cùng tên gọi nhưng nguyên lý phong thủy và cách xử lý không giống nhau.
2) Góc nhìn phong thủy: vì sao nhà chữ T dễ “lệch khí”?
Trong phong thủy hình thế, nhà không vuông vức thường bị xem là khuyết góc, dòng khí khó phân bổ đều, sinh “điểm chết” về ánh sáng – thông gió – lưu thông.
Với nhà chữ T, phần “thiếu” hai góc sau/bên làm tổng thể mất cân bằng. Một số tài liệu dân gian gọi hình thế này là “Thoái Điền Tỷ” (vận khí suy thoái), nên dễ gặp phải điều không lành nếu không xử lý tốt.
Tóm gọn: nhà chữ T không mặc định xấu, nhưng dễ bất lợi nếu bố trí công năng sai (đặt phòng quan trọng vào góc khuyết). Ví dụ như cửa chính, hành lang “đâm thẳng”, hay nhà thiếu ánh sáng, hoặc khí thoát quá nhanh qua trục dọc.
Các nguy cơ thường gặp:
Khuyết góc theo Bát quái: mất một cung có thể được quan niệm là ảnh hưởng tới chủ đề đời sống tương ứng (ví dụ: Tây Nam – vai trò người mẹ/quan hệ; Đông Nam – tài lộc; Tây Bắc – người cha/quý nhân). Đó là cách diễn giải truyền thống, dùng để định vị giải pháp chứ không phải lời “phán đoán số mệnh”, song khi mua hoặc xây dựng nhà chữ T gia chủ nên lưu ý để có những quyết định đúng đắn.
Dòng khí không đều: khối dọc như “hành lang hút gió”, phần ngang tạo vùng tĩnh. Nếu không xử lý chuyển tiếp, nhà dễ có điểm tụ khí tù và điểm thoát khí. (Nguyên tắc cơ bản của phong thủy là cân bằng lưu thông khí – tụ khí)
3) Ưu – nhược điểm thực tế (công năng & thị trường)
Ưu điểm:
Phân khu rõ công – tư (khối ngang sinh hoạt, khối dọc riêng tư/đa năng).
Dễ tạo điểm nhấn mặt tiền (nhánh dọc làm sảnh, hiên, ôm sân/trục cảnh quan).
Phù hợp lô đất rộng – sâu (nông thôn/ngoại ô) nên thi công linh hoạt.
Nhược điểm:
Có thiết kế chữ T dài, dễ lãng phí diện tích hành lang trong khi đó tính thông gió – chiếu sáng kém ở các “góc chết”.
Cảm giác lệch: một cánh nhà “nặng”, một cánh “nhẹ”, tác động tâm lý khi ở lâu.
Thị hiếu & thanh khoản: ở một số khu vực, người mua chuộng nhà chữ nhật/vuông; nhà chữ T có thể bị đánh giá thận trọng hơn nếu chưa có giải pháp phong thủy – thiết kế rõ ràng (thực tế thị trường phụ thuộc khu vực).
4) 12 giải pháp hóa giải, tối ưu nhà chữ T (từ “cứng” tới “mềm”)
Nguyên tắc chung: bổ sung phần khuyết để tiệm cận hình vuông, từ đó làm dịu dòng khí quá gắt và tăng ánh sáng – thông gió ở vùng “chết”.
4.1. Giải pháp kiến trúc, cảnh quan (nên tham khảo vì hiệu quả cao)
Bổ khối xây dựng (mở rộng phòng/ban công/pergola) để hoàn chỉnh góc khuyết. Nếu không thể xây, dùng sân – hiên – patio giả để làm hài hòa toàn thể công trình (biện pháp được khuyến nghị trong phong thủy ứng dụng).
Làm “pocket garden” (vườn bỏ túi) ngay góc khuyết + đèn trụ/đèn tường (kích hoạt khu vực này được tăng sáng)
Điều chỉnh cửa chính – hiên đón khí: tránh trục thẳng dài hút khí, tạo sảnh đệm/mái đón, thay đổi lộ trình bước chân theo đường cong nhẹ.
Giếng trời/chớp gió ở vùng tối của nhánh dọc để cân bằng lưu thông – chiếu sáng.
Hàng rào – mảng xanh – vách lam tạo giới hạn mềm ở rìa khuyết, giúp cảm nhận được sự hài hòa.
4.2. Giải pháp nội thất – phong thủy (bổ trợ/thẩm mỹ)
Tạo “biên ảo”: treo gương/tranh có chiều sâu, dùng đèn làm “điểm tụ” tại vách giáp góc khuyết
Bổ sung theo Ngũ hành ở khu vực tương ứng (ví dụ góc Tây Nam: Thổ – đèn, gốm, góc Đông Nam: Mộc – cây lá khỏe).
Thảm tròn/bàn bo góc để “làm mềm” các trục sắc – tránh mũi tên từ góc nhọn, hành lang dài.
Phân vai không gian: đặt giường master, bếp, bàn thờ ở khu đủ hình, phòng phụ (kho, wc, giặt) ở khu lồi/lõm ít quan trọng.
Dẫn khí – giữ khí: dùng vách trang trí thấp/kệ mở để bẻ hướng, không đặt cửa – cửa trên cùng một trục.
Âm thanh – mùi hương – ánh sáng: loa nền nhẹ, tinh dầu, đèn ấm ở vùng “tĩnh” giúp cảm xúc cân bằng.
Dọn gọn – tối giản các mảng lồi lõm (tránh chất thêm đồ ở vùng khuyết làm khí càng “nặng”).
Nhánh dọc: ưu tiên phòng ngủ phụ, làm việc, kho; tránh đặt master ở phần khuyết của tổng thể.
Cửa – hành lang: tạo điểm dừng (console, ghế băng, cây xanh), hạn chế “đâm thẳng” vào giường/bếp.
Giếng trời/ô sáng: tại vị trí nối giữa khối ngang – dọc để giải quyết “nút thắt” khí & ánh sáng.
6) Tác động tới giá trị & thanh khoản
Tâm lý mua: ở một số thị trường, nhà hình vuông/nhật được chuộng hơn. Nhà chữ T sẽ dễ bán khi có: mặt tiền đẹp, cảnh quan tốt, ánh sáng chuẩn và bản vẽ cải tạo hợp lý (thể hiện đã xử lý “khuyết”).
Ngân sách cải tạo: chỉ cần những can thiệp “thông minh” (hiên, patio, vườn nhỏ, giếng trời, đèn & vật liệu) là đã cải thiện trải nghiệm sống và nhìn thấy tác động tích cực khi chào bán/cho thuê.
Bối cảnh địa phương: vùng nông thôn/ngoại ô có đất rộng, nhà chữ T rất phổ biến vì nhu cầu chia khối chức năng; yếu tố phong thủy thường được cân bằng bằng sân vườn – cây xanh – hiên.
8) Câu hỏi thường gặp (FAQ)
Q1. Nhà chữ T có nhất thiết “xấu phong thủy” không? A. Không. Vấn đề là cân bằng hình khối & dòng khí. Nếu bổ sung khối (xây, patio), xử lý cửa – ánh sáng – cảnh quan, nhà chữ T hoàn toàn sống tốt và bán/cho thuê được.
Q2. Khuyết góc cụ thể ảnh hưởng gì? A. Theo cách diễn giải Bagua: khuyết Tây Nam (quan hệ/gia đạo), Đông Nam (tài lộc), Tây Bắc (quý nhân)… Đây là khung tham chiếu để đặt giải pháp – không phải tiên đoán.
Q3. Có mẹo “nhanh – rẻ” để hóa giải không? a
Q4. Tôi đang ở nhà chữ T, nên đặt cửa chính – bếp – giường thế nào? A. Cửa chính có sảnh đệm/hiên, tránh trục thẳng dài; bếp & giường ở phần đủ hình, lưng tựa tường chắc; cuối hành lang nên có điểm dừng (đèn, cây, tủ trưng bày).
Q5. Nhà chữ T khác gì nhà ở ngã ba chữ T (T-junction)? A. Nhà chữ T là hình mặt bằng; T-junction là vị trí lô đất ở đầu đường đâm tới. Hai vấn đề khác nhau và cách xử lý cũng khác; T-junction cần xét thêm dòng xe – xung sát – hướng mở cửa.
9) Lời khuyên cho nhà đầu tư & gia chủ
Đừng “dán nhãn xấu” cho nhà chữ T. Hãy xem nó như một bài toán thiết kế: bù hình khối, tối ưu cửa – ánh sáng – thông gió, tăng cảnh quan.
Ưu tiên giải pháp cứng (patio/hiên/vườn, giếng trời, chỉnh cửa) để đổi trải nghiệm sống; giải pháp mềm (gương, đèn, cây, ngũ hành) là đòn bẩy thẩm mỹ – tâm lý.
Định vị giá trị khi bán/cho thuê: bản vẽ cải tạo & ảnh “trước – sau” giúp người mua thấy ngay việc khuyết góc đã được xử lý.
Nếu vẫn phân vân, hãy mời kiến trúc sư (và chuyên gia phong thủy nếu bạn coi trọng) khảo sát hiện trạng – dòng khí – giải pháp thi công, đặc biệt với ngôi nhà đã xây.